加工定制是
品牌芯感智
型号gzp6803
类型投入式液位变送器
测量范围1-200mh2o
测量精度±0.25%fs
材质不锈钢
电源8-30vdc
输出信号4-20ma
测量介质水,油等液体
展开
厂家直供芯感智投入式液位变送器
点我去除广告
特点
投入液体中的部分为全密封不锈钢结构,传感器与放大电路均在不锈钢全密封壳体内,防护等级为ip68;
推荐的接线盒为防水接线盒,安装于方便接线的地方,防护等级为ip65;
顶部不锈钢帽可拆卸,既可防止膜片的意外损伤,又便于定期清洗;
量程可低至0.5mh2o,可抵抗较强的压力冲击;
防爆型产品符合gb3836,4标准的exiaⅱct6要求
船用型产品符合ccs《钢质海船入级规范》(2006)的要求。
概述
gzp6803由高性能压力传感器作为测量元件,通过压力传感器,把与液位深度成正比的液体静压力准确测量出来,并经过专用信号调理电路转换成标准(电流或电压)信号输出,建立起输出信号与液体深度的线性对应关系,实现对液体深度的精确测量,产品精度高,体积小、使用方便,直接投入液体中,即可测量出变送器末端到液面的液位高度,适用于石油、化工、电厂、城市供水、水文勘探领域的水位或液位测量与控制。
技术参数

外形结构

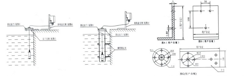
现场安装示意图

选型提示
1、选型时请注意被测介质要与产品和介质相接触的部分相兼容,同时要注明被测介质在测量状态时的密度(水除外)。
2、电缆长度标准配置:3和5 mh2o为10米线;6和10 mh2o为20米线;15和20 mh2o为30米线。
3、产品安装在多雷雨地区时,建议用户加装防雷击保护装置,并确保产品及电源可靠接地。
4、1米水柱在标准条件下(即4℃,g=9.80665米/秒2),与压力的对应关系:
1mh2o = 0.1kgf/cm2= 9.80665kpa
5、若对产品的性能参数和功能上有特殊要求,请与本公司商洽。