威海哪里有销售AVAX自动排气阀的厂家
威海哪里有销售AVAX自动排气阀的厂家
产品价格:¥定价销售(人民币)
  • 规格:AVAX
  • 发货地:上海
  • 品牌:
  • 最小起订量:1只
  • 诚信商家
    会员级别:金牌会员
    认证类型:企业认证
    企业证件:通过认证

    商铺名称:上海昊沃阀门有限公司

    联系人:吕经理(先生)

    联系手机:

    固定电话:

    企业邮箱:765761533@qq.com

    联系地址:上海市星云经济园区真北路3199号

    邮编:201900

    联系我时,请说是在电子快手网上看到的,谢谢!

    商品详情

      哪里有销售AVAX自动排气阀的厂家


      AVAX自动排气阀产品简介:
      在一般情况下,水中约含2VOL%的溶解空气,在输水过程中,这些空气由水中不断释放出来,聚集在管线的高点处,形成空气袋(AIR POCKET),使输水变得困难,系统输水能力可因此下降约5-15%。主要功能就是排除这2VOL%的溶解空气,并适合装置于高层建筑,厂区内配管,小型泵站用以保护或改善系统的输水效率及节约能源。?
      为一类似椭圆形阀体,内部所有零件包括浮球,杠杆、阀座等均为304不锈钢,内部使用标准排气孔径1/6",适合用于PN16工作压力环境。介质温度:0-80℃。?
      主要应用于暖通空调系统,往往安装在制高点或弯头等处,以排除管道中多余气体、提高管路使用效率及降低能耗。介质温度:0-80℃。?
      产品性能参数:
      公称压力:1.0~1.6MPa?
      公称通径:10~25mm?
      适用介质:水、油等非腐蚀性液体?
      适用温度:0~100℃?
      试验标准:GB/T 13927?API598?
      AVAX自动排气阀零部件材料:

      ARVX微量排气阀

      名称

      阀盖、阀体

      浮球

      杠杆、杠杆架

      塞头

      材质

      球墨铸铁

      304不锈钢

      304不锈钢

      合成橡胶BUNA-NVITOL

      AVAX自动排气阀

      全铜

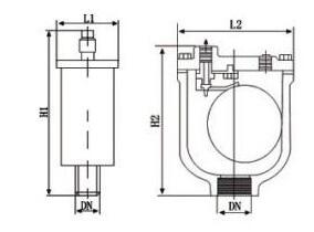
      结构图与尺寸:

      DN

      10(3/8")

      15(1/2")

      20(3/4")

      25(1")

      L1

      47

      47

      47

      47

      H1

      113

      113

      113

      113

      L2

      102

      102

      102

      102

      H2

      127

      127

      127

      127

      AVAX自动排气阀排气量表:

      安装注意事项:

    0571-87774297